• GD-Metlangen
  • ca.140 qm Wfl. / 831 qm Gsfl.
Kaufpreis: VB. € 360 000,-- 

SLIDE-BILDERGALERIE

FÜR NATURLIEBHABER EIN BESONDERER GENUSS…!

Ortschaft: Schwäbisch Gmünd-Metlangen

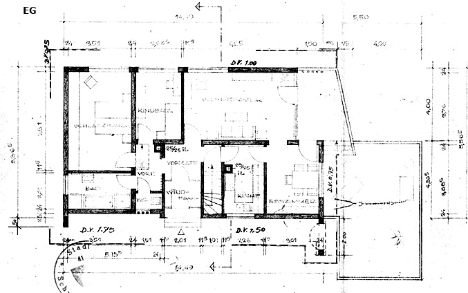
Objektart: Einfamilienhaus mit Einliegerwohnung und ausbaufähigem Dachgeschoss
mit genialem Panoramablick!

Beschreibung:

  • Baujahr 1961
  • Wohnfläche ca.140 qm
  • Grundstücksgröße 831 qm
  • großflächige Terrasse/Südseite
  • geräumige Garage (19,50 qm)
  • sofort frei

– Dachaufstockung im Jahr 1980
– Einbau/Kunststofffenster im Jahr 2008

Energiedaten: BA, 242,04 kWh, G, Bj der Anlagetechnik 1993, Heizöl

Kaufpreis: VB. € 360 000,–
Die Käuferprovision beträgt 3,57% inkl. der gesetzl. MwSt. aus dem Kaufpreis